Banesë në shitje në Tophane

Sipas marrëveshjes

Përshkrimi

Banesë në shitje në lagjen Tophane.
Banesa është e organizuar në mënyrë të shkëlqyer dhe ofron kushte shumë të mira për jetesë familjare,
po ashtu dhe për qiradhënje. Ka afër shkollën fillore,
tregun e gjelbërt, trafikun urban etj.
Kontrata bëhet tek noteri.

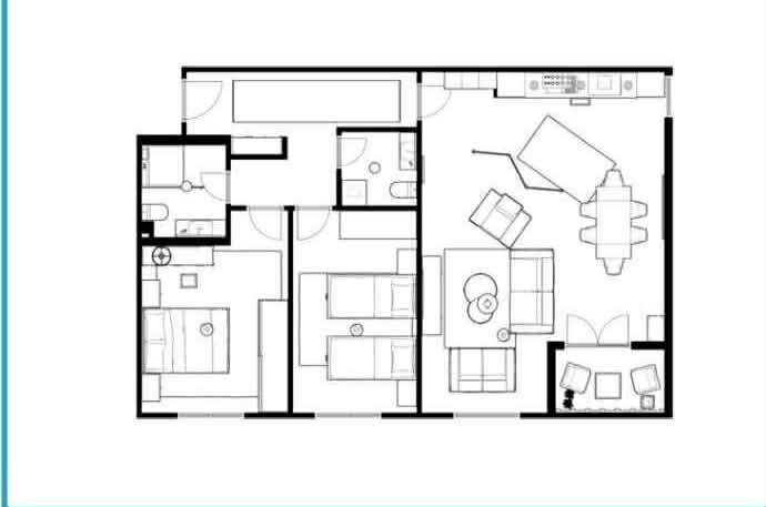
Struktura e Baneses:
* Sip 107.93m², kati -IV-
* Qendrim ditorë,
* Kuzhinë me tryezari,
* Holl / koridor,
* Dy dhoma të gjumit,
* Banjo,
* Wc,
* Depo / shpajz,
* Ballkonë,
* Garazh private.

Çmmi me marrëveshje

Na kontaktoni :
+383 49 157 113

[email protected]
www.delta-ks.com

Adresa

  • Qyteti: Prishtinë
  • Lagjja: Tophane
  • Shteti: Republika e Kosovës

Detaje

Përditësuar më 24/02/2026 në 11:46

  • ID e pronës: 37695
  • Lloji: Banesa
  • Statusi: Në shitje
  • Sipërfaqja: 107 m2
  • Dhoma gjumi: 2
  • Banjo: 2
  • Çmimi: Sipas marrëveshjes

Prona të ngjashme

420 €

Dhoma gjumi: 2Banjo: 2m2: 85

ID: 17633

Alban Gashi-Agjent

3 years ago

Dhoma gjumi: 2Banjo: 2m2: 85

ID: 17633

3 years ago

Dhoma gjumi: 1Banjo: 1m2: 60

ID: 9737

Ari Kaqanolli-Agjent

4 years ago

Dhoma gjumi: 1Banjo: 1m2: 60

ID: 9737

4 years ago

400 €

Dhoma gjumi: 2Banjo: 2m2: 85

ID: 12968

Alban Gashi-Agjent

3 years ago

Dhoma gjumi: 2Banjo: 2m2: 85

ID: 12968

3 years ago

Dhoma gjumi: 1Banjo: 1m2: 70

ID: 9295

Alban -Agjent

4 years ago

Dhoma gjumi: 1Banjo: 1m2: 70

ID: 9295

4 years ago